Casa indipendente in vendita

Santorso, Via Murello
€ 140.000
8 locali 8 locali
200 Mq 200 Mq
2 bagni 2 bagni

Casa indipendente in vendita

Santorso, Via Murello

Descrizione annuncio

Santorso – Casa singola in posizione panoramica

Proponiamo casa singola situata in posizione panoramica a Santorso, inserita su un lotto di circa 430 mq.

L’immobile si presenta parzialmente da ristrutturare; sono già stati eseguiti importanti interventi di manutenzione, tra cui la sostituzione delle guaine di tetto e terrazzo, effettuata circa 3 anni fa.

La disposizione interna rende la soluzione ideale anche per la realizzazione di due unità abitative indipendenti.

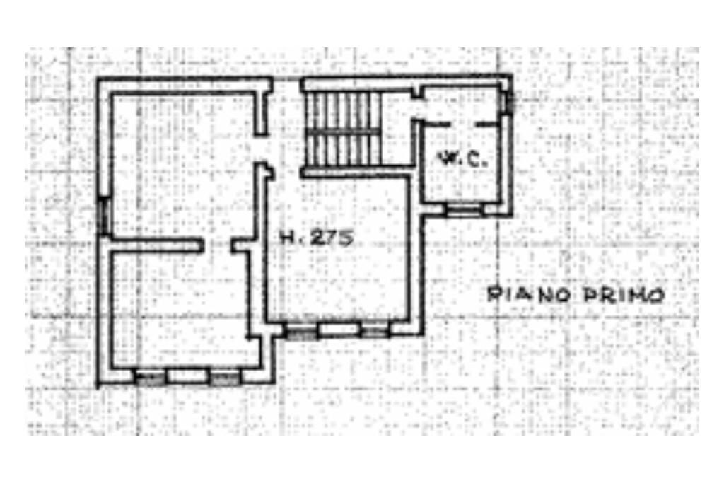
Composizione:

Piano terra: cucina, soggiorno, bagno, camera matrimoniale, giardino e garage/magazzino.

Piano primo: tre ampie stanze, bagno e terrazzone di 30 mq.

Piano secondo: due ulteriori stanze e terrazzino abitabile con vista panoramica.

Soluzione interessante per chi cerca una casa indipendente, con spazi generosi e ottime potenzialità di personalizzazione, in contesto tranquillo e panoramico.

Mostra tutto

Nelle vicinanze

Trasporto pubblico Trasporto pubblico
Trasporto pubblico
740 m
Bristol
Bristol
2,7 Km
Ricariche auto elettriche Ricariche auto elettriche
Fabbrica Saccardo | Driwe
1,4 Km
Tiemme snc | Driwe
1,8 Km
Ascopiave Energie | Driwe
2,8 Km
Schio Centro | Driwe
3,0 Km
Scuole Scuole
Scuole elementari e medie G.B. Cipani
700 m
Scuola primaria San Giovanni Bosco
740 m
Istituto Professionale Statale "G.B.Garbin"
2,2 Km
Scuola primaria Palladio
2,3 Km
I.C. Statale Schio 3 Il Tessitore
2,3 Km
Farmacia Farmacia
Farmacia Bressan
960 m
Farmacia SS. Trinità
2,3 Km
Farmacia Santa Croce
2,9 Km
Ospedali Ospedali
Croce Rossa Italiana - Comitato Locale di Schio
2,7 Km
Ospedale Alto Vicentino - ULSS 7 Pedemontana
2,8 Km
Casa della Salute - ULSS 7 Pedemontana
2,8 Km
Supermercati Supermercati
Famila
1,9 Km
Prix
2,4 Km
Salumi e formaggi da Bruno
2,5 Km
Ipercoop
2,5 Km
Interspar
2,9 Km
Negozi Negozi
Panificio Dotto
450 m
Allegra natura
850 m
Eurospin
970 m
Alimentari "Stella"
1,1 Km
Panificio Gasparella
1,1 Km
Bar Bar
Arci
180 m
Bar centrale
560 m
Dall'Antonia
720 m
Corte Sconta
800 m
On the Road
870 m
Ristoranti Ristoranti
Ristorante Pizzeria Doremi
690 m
Ristoranti
920 m
Pizzeria da Vittorio
950 m
Agriturismo Cabrele
1,7 Km
Pizzeria La Botte
1,9 Km
Mostra tutto

Caratteristiche

Rif.:
61164766
Piano:
Su più livelli di 3
Totale piani:
3
Box:
2
Posti auto:
4
Terrazzi:
2
Mostra tutto
Prezzo Prezzo
€ 140.000
Rata mutuo Rata mutuo
€ 654 / mese
Spese annue Spese annue
€ 0
Proponi il tuo prezzoProponi il tuo prezzo

Classe Energetica

Questo immobile è esente da classe energetica
Anno di costruzione:
1950
Riscaldamento:
Autonomo
Tipo impianto:
A radiatori
Tipo alimentazione:
Metano

Ti interessa visionare l'immobile?

Fissa un appuntamento  Fissa un appuntamento

Richiedi informazioni

Clicca su Leggi per aprire l'informativa
* Questi campi sono obbligatori

Calcola il tuo mutuo

Semplice e senza impegno
Anticipo

( % )
Mutuo

( % )

pochi semplici passi

inserisci i tuoi dati
Questionario completato
Grazie per aver richiesto un appuntamento senza impegno con un nostro Consulente del Credito e Assicurativo.

Hai inserito correttamente tutti i dati necessari e a breve riceverai una e-mail con un link da convalidare per inviare i tuoi dati.
Affiliato
Studio Schio Srl
P.le Divisione Acqui, snc 36015 Schio (VI)

Il nostro staff


  • Andrea Carlesso
    Affiliato

  • Andrea Rigotto
    Responsabile
P.le Divisione Acqui, snc 36015 Schio (VI)
Zona: Schio
Mostra su mappa
Orari: Dal lunedì al venerdì: ore 9.00 - 12.30 / 15.00 - 19.30 Sabato: ore 9.00 - 13.00
Affiliato
Studio Schio Srl
P.le Divisione Acqui, snc 36015 Schio (VI)

2026 Tecnocasa Franchising S.p.A. - P. IVA 08365160152 - Via Monte Bianco 60/A 20089 Rozzano (MI). Ogni agenzia ha un proprio titolare ed è autonoma. Privacy policy | Policy utilizzo | Cookie policy