Casa indipendente in vendita

Schio, Contrà Pornaro - Pornaro
€ 70.000
11 locali 11 locali
200 Mq 200 Mq
1 bagno 1 bagno

Casa indipendente in vendita

Schio, Contrà Pornaro - Pornaro

Descrizione annuncio

SCHIO - Contra' Masetto

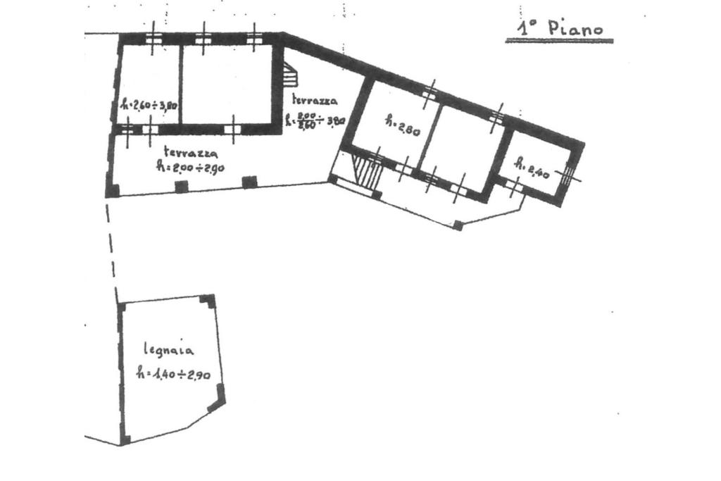
In prima collina, comoda ai principali servizi, proponiamo una casa di corte completamente da ristrutturare con corte privata.

La proprietà comprende circa 5.000 mq ca. di terreno boschivo direttamente collegato all’immobile, perfetto per chi desidera privacy, natura e uno spazio verde di proprietà


L’immobile offre importanti possibilità di sviluppo e la possibilità di ricavare fino a 3 unità :

- Due unità principali di circa 50 mq per piano

- Una legnaia trasformabile in dependance, taverna o terza unità indipendente.

La soluzione è ideale per uno/due nuclei familiari o per chi cerca un immobile da destinare a struttura ricettiva (B&B, affittacamere, turismo di collina).

Uno dei due alloggi gode inoltre di un terrazzo abitabile di circa 50 mq ca. con vista panoramica aperta verso le piane di Schio.

L’intera proprietà unisce comodità, indipendenza e contesto tranquillo, valorizzata da uno scenario naturale che dona luminosità e una sensazione di ampio respiro.

Ottima opportunità per chi cerca un progetto di ristrutturazione con grandi potenzialità!

Mostra tutto

Nelle vicinanze

Trasporto pubblico Trasporto pubblico
Bristol
Bristol
760 m
Trasporto pubblico
1,7 Km
Ricariche auto elettriche Ricariche auto elettriche
Fabbrica Saccardo | Driwe
880 m
Schio Centro | Driwe
2,6 Km
Scuole Scuole
I.C. Statale Schio 3 Il Tessitore
1,7 Km
Scuola secondaria di 1° grado "P. Maraschin"
1,7 Km
Scuola primaria Palladio
1,7 Km
Scuola primaria San Giovanni Bosco
2,0 Km
Istituto Professionale Statale "G.B.Garbin"
2,4 Km
Farmacia Farmacia
Farmacia Bressan
2,1 Km
Farmacia SS. Trinità
2,1 Km
Amaldi
2,7 Km
Farmacia Marchesini
2,8 Km
Farmacia Pasubio
2,8 Km
Ospedali Ospedali
Croce Rossa Italiana - Comitato Locale di Schio
2,1 Km
Casa della Salute - ULSS 7 Pedemontana
2,1 Km
Supermercati Supermercati
Famila
1,8 Km
Prix
2,0 Km
Salumi e formaggi da Bruno
2,2 Km
Max Store
2,7 Km
D-Più
2,8 Km
Negozi Negozi
Panificio Dotto
1,8 Km
Alimentari "Stella"
1,8 Km
Panificio Gasparella
2,0 Km
Allegra natura
2,1 Km
Stella Pane
2,2 Km
Bar Bar
Corte Sconta
1,7 Km
Bar dei Boldú
1,7 Km
La Fattoria
1,7 Km
Al ponte
1,9 Km
Snack Bar
2,1 Km
Ristoranti Ristoranti
Pizzeria al Villaggio
1,5 Km
Pizzeria La Botte
1,6 Km
Spinechile Resort
1,7 Km
Trattoria San Martino
1,7 Km
Pizzeria Art Pizza
1,7 Km
Mostra tutto

Caratteristiche

Rif.:
61147214
Piano:
Su più livelli di 2
Totale piani:
2
Balconi:
1
Terrazzi:
1
Camere da letto:
5
Mostra tutto
Prezzo Prezzo
€ 70.000
Rata mutuo Rata mutuo
€ 330 / mese
Spese annue Spese annue
€ 0
Proponi il tuo prezzoProponi il tuo prezzo

Classe Energetica

G
G
G
G
G
G
G
G
G
EP invernale del fabbricato:
EP estiva del fabbricato:
Anno di costruzione:
1900
Riscaldamento:
Assente

Ti interessa visionare l'immobile?

Fissa un appuntamento  Fissa un appuntamento

Richiedi informazioni

Clicca su Leggi per aprire l'informativa
* Questi campi sono obbligatori

Calcola il tuo mutuo

Semplice e senza impegno
Anticipo

( % )
Mutuo

( % )

pochi semplici passi

inserisci i tuoi dati
Questionario completato
Grazie per aver richiesto un appuntamento senza impegno con un nostro Consulente del Credito e Assicurativo.

Hai inserito correttamente tutti i dati necessari e a breve riceverai una e-mail con un link da convalidare per inviare i tuoi dati.
Affiliato
Studio Schio Srl
P.le Divisione Acqui, snc 36015 Schio (VI)

Il nostro staff


  • Andrea Carlesso
    Affiliato

  • Andrea Rigotto
    Responsabile
P.le Divisione Acqui, snc 36015 Schio (VI)
Zona: Schio
Mostra su mappa
Orari: Dal lunedì al venerdì: ore 9.00 - 12.30 / 15.00 - 19.30 Sabato: ore 9.00 - 13.00
Affiliato
Studio Schio Srl
P.le Divisione Acqui, snc 36015 Schio (VI)

2025 Tecnocasa Franchising S.p.A. - P. IVA 08365160152 - Via Monte Bianco 60/A 20089 Rozzano (MI). Ogni agenzia ha un proprio titolare ed è autonoma. Privacy policy | Policy utilizzo | Cookie policy